登录
注册
首页
服务指南
动态发布
少儿服务
特色馆藏
数字图书馆
滨海文旅
文旅服务
读者中心
当前位置:
首页
>
少年儿童服务
>
空间导引
空间导引
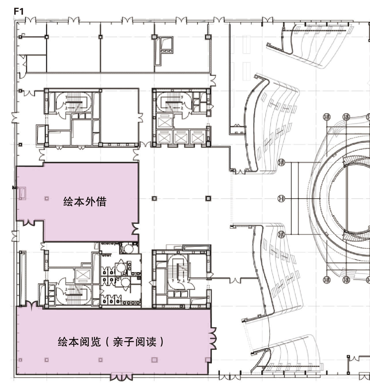
南区一层西:绘本外借区
南区一层西南:绘本阅览(亲子阅读)区
南区二层西北:儿童图书借阅室